Anh Phương ở Quận Gò Vấp ,Tp Hcm có mảnh đất 6.7×26 m muốn công ty NHÀ VIỆT XANH Thiết kế biệt thự phố mặt tiền 6.7m .Anh mong muốn kiến trúc hiện đại,không gian hài hòa với thiên nhiên,có sân vườn để trồng cây ,nội thất trang trí nhẹ nhàng hiện đại,không cầu kỳ.
Sau khi kiến trúc sư chúng tôi gặp anh Phương trao đổi ,nắm nhu cầu sử dụng các phòng,ý tưởng thiết kế,chúng tôi đã ra phương án Thiết kế biệt thự phố mặt tiền 6.7m với hình ảnh sau.
Thông Tin dự án :
Chủ Đầu tư :anh Trần Hoàng Phương
Địa điểm xây dựng :1050/57/14 Quang Trung,P8 ,Quận Gò Vấp,Tp Hcm
Thiết kế :kts Võ Thanh Lâm,kts Lâm Trí Phú,Ks Hoàng Công Thành ,Me Văn Bá Thanh
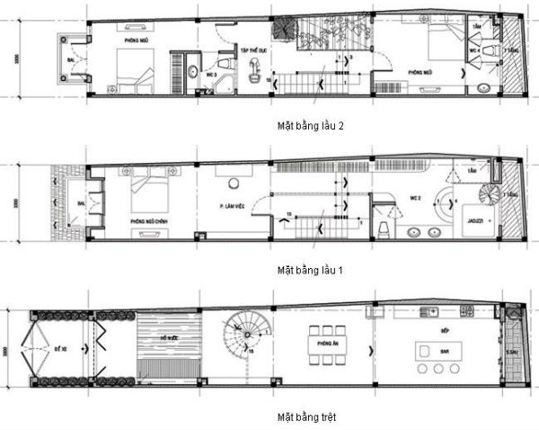
Diện tích :diện tích đất 6.6x26m xây dựng 100m2 ,3 phòng ngủ
Thiết kế và thi công :Công Ty TNHH Tư Vấn Thiết Kế và Xây Dựng Nhà Việt Xanh
Thời gian khởi công :tháng 11 năm 2015




